3 724,00 PLN (49,00 PLN)

Orginalny lokal na biuro, 76m, Praga Południe

Obiekt na wynajem,
Warszawa

Kontakt z agentem: Art Dom
Opis nieruchomości

Do wynajęcia bardzo ciekawe architektonicznie i wizualnie biuro typu open-space, na 2 piętrze budynku biurowego, w  ok.Marsa.

Oryginalne, wysokie, ciche, bardzo jasne, z dużym przeszkleniem i szerokim widokiem na zieleń.

W pomieszczeniu wydzielone jest pomieszczenie konferencyjne.


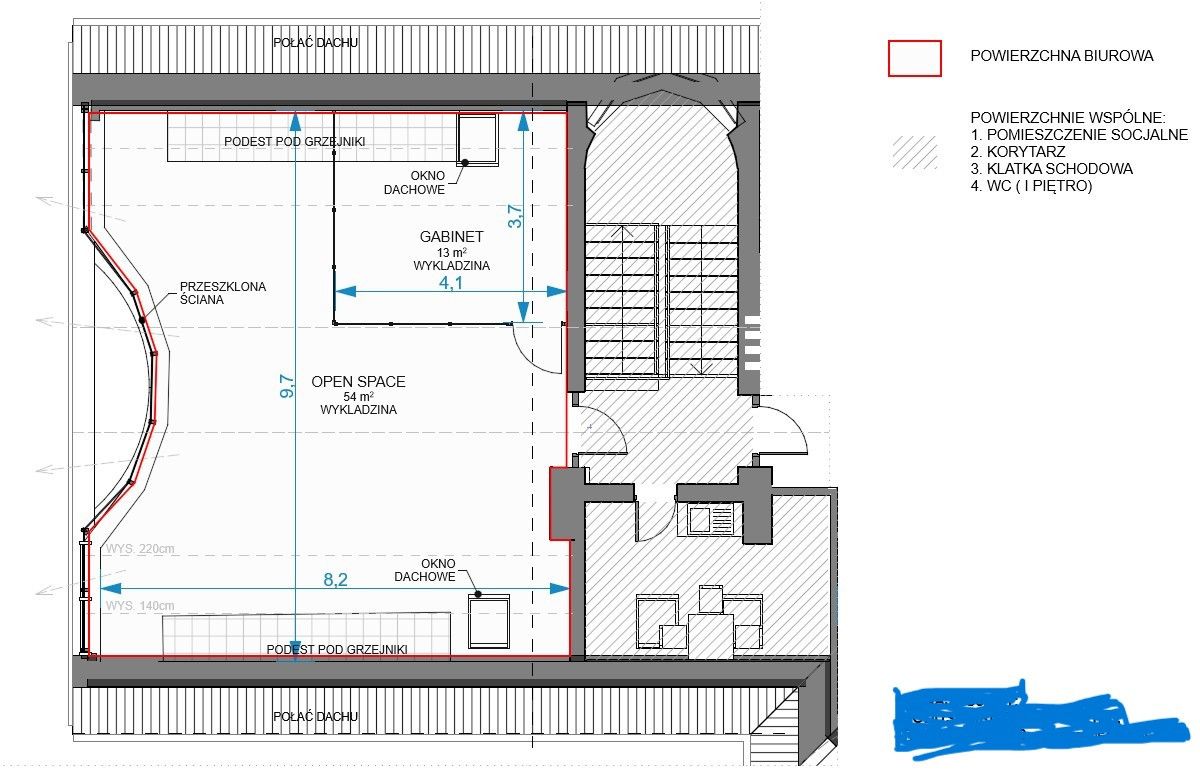
Powierzchnia: 76 m2 , współczynnik powierzchni wspólnej 13%.

Stawka: 49 zł/ m2, co daje kwotę netto 3 724 zł netto.

Parking: możliwość wynajęcia do 2 miejsc na terenie ogrodzonym w cenie 180zł/miejsce. Możliwość parkowania bez ograniczeń na ulicy w bezpośrednim sąsiedztwie.

Wnętrze bardzo widne - znajduje się w skosach wysokiego poddasza, dzięki czemu pomieszczenia mają zróżnicowaną wysokość (do 7 m) oraz liczne okna fasadowe i dachowe. Wyposażenie powierzchni obejmuje klimatyzację, oświetlenie w formie podwieszanych lamp, okablowanie elektryczne, komputerowe i alarmowe. Lokal wyposażony w konfigurowalne podłączenia światłowodowe z internetem. Podłoga pokryta jest wykładziną dywanową.
Pomieszczenie socjalne i WC w częściach wspólnych. 

Budynek zlokalizowany jest w dobrze skomunikowanym rejonie (tramwaj, autobus, podciąg SKM), w pobliżu wielu sklepów wielkopowierzchniowych (KingCross z Auchan, Castorama). 

Kaucja: równowartość czynszu brutto za 2,5 miesiąca
Media: rozliczane ryczałtem lub wg liczników



Dostępność: od 03.2026r




Дуже цікавий архітектурно та візуально привабливий офіс відкритого планування пропонується в оренду на 2-му поверсі офісної будівлі поблизу Марси.

Унікальний, тихий та дуже світлий простір з високими стелями, великим склінням та широким видом на зелень.

Приміщення включає окрему конференц-залу.

Площа: 76 м², з коефіцієнтом загальної площі 13%.

Ціна: 49 злотих/м², що становить 3724 злотих нетто.

Паркування: До 2 місць доступні для оренди на огородженій території за ціною 180 злотих за місце. Неподалік є необмежена вулична парковка.

Інтер'єр дуже світлий - розташований на похилому горищі, кімнати мають різну висоту (до 7 метрів) та численні фасадні та мансардні вікна. Приміщення обладнане кондиціонером, підвісним освітленням, електричним, комп'ютерним та сигналізаційним обладнанням. Приміщення оснащено налаштованим оптоволоконним інтернетом. Підлога вкрита килимовим покриттям.

Зручності включають кімнату відпочинку та туалет у місцях загального користування.

Будівля розташована в районі з гарним сполученням (трамвай, автобус, поїзд SKM), поруч із численними великими магазинами (KingCross з Auchan, Castorama).

Застава: еквівалент 2,5 місячної орендної плати
Комунальні послуги: фіксована плата або лічильник

Доступність: з березня 2026 року





A very interesting architecturally and visually appealing open-plan office is available for rent on the 2nd floor of an office building near Marsa.

A unique, high-ceilinged, quiet, and very bright space with extensive glazing and a wide view of the greenery.

The space includes a separate conference room.

Area: 76 m², with a 13% common area factor.

Rate: PLN 49/m², which translates to PLN 3,724 net.

Parking: Up to 2 spaces available for rent in the fenced area for PLN 180 per space. Unrestricted street parking is available in the immediate vicinity.

The interior is very bright - located in the sloped ceiling of a high attic, allowing for varying room heights (up to 7 meters) and numerous façade and skylight windows. The space is equipped with air conditioning, pendant lighting, electrical, computer, and alarm systems. The unit is equipped with configurable fiber-optic internet connections. The floor is carpeted.

Amenities include a break room and a restroom in the common areas.

The building is located in a well-connected area (tram, bus, SKM train), near numerous large-scale stores (KingCross with Auchan, Castorama).

Security deposit: equivalent to 2.5 months' gross rent
Utilities: flat-rate or metered

Availability: from March 2026

Plan Nieruchomości
Mapa
Kontakt z agentem

Art Dom

Maria Senator - Twardowska
Nieprawidłowy adres E-mail

Strona korzysta z plików cookie w celu realizacji usług zgodnie z Polityką prywatności. Możesz określić warunki przechowywania lub dostępu do cookie w Twojej przeglądarce.