25 000,00 PLN (56,82 PLN)

Lokal Willa Piertusińskiego 1930r, 15 miejsc post.

Biuro na wynajem,
Warszawa

Kontakt z agentem: Art Dom
Opis nieruchomości

Zapraszamy do zapoznania z wyjątkową ofertą budynku do wynajęcia na ul. Tykocińskiej - Willa Pietrusińskiego 

Jest to zabytkowy budynek o powierzchni całkowitej około 440 m2 i powierzchni użytkowej 250 m2 położony działce 1678m2  do wyłącznego korzystania przez najemcę 

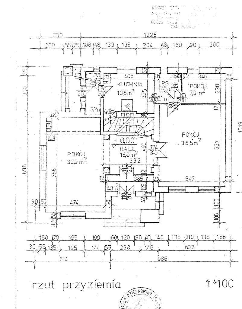
Parter - ok.120 m2 (wysokość - 3,80m): reprezentacyjny hol 15m2 m2, salon - 33,9 m2, pokój - 36,6 m2, widna kuchnia-7,9m2, wc- 2,5m2 oraz samodzielna kawalerka ok 17m2

Piętro -(wysokość- 3,50 m): trzy duże pokoje  (40 m2; 27,9m2; 26,6m2;) dwie garderoby każda po1,5m2, widna łazienka z prysznicem i wc - ok 4m2 m2, łazienka z wc i pisuarem- 4m2 oraz duży przestronny holu - 23 m2;

Poddasze - ok. 100 m2 (wysokość w szczycie- ok.3,20m) - dwa niezależne pokoje ze skosami i hol z aneksem kuchennym .

Duża wysoka piwnica: wysokość około 250 cm - kotłownia, hall, 2 duże pomieszczenia 30m2 i  20m2 
 

15 miejsc postojowych na terenie działki 

CO WYRÓŻNIA TEN LOKAL:

440 m² na 4 kondygnacjach (piwnica, parter, 1 piętro, poddasze)
Zabytkowa klatka schodowa łącząca parter, piętro i poddasze 
15 miejsc parkingowych na zamkniętym dziedzińcu
Dobry punkt Komunikacyjny 
Ogrzewanie miejskie - własny węzeł cieplny w budynku

IDEALNE DLA: Kancelarii prawnej | Biura doradczego | Agencji kreatywnej | Przedstawicielstwa firmy

KOSZTY:

Czynsz: 25000 PLN + VAT
Opłaty eksploatacyjne: Woda, prąd, ogrzewanie


We invite you to familiarize yourself with the unique offer of a building for rent at ul. Tykocińska 15 - Pietrusiński Villa

This historic building has a total area of ​​approximately 440 m² and a usable area of ​​250 m², located on a 1678 m² plot for the exclusive use of the tenant.

Ground floor - approximately 120 m² (height - 3.80 m): a representative hall of 15 m², a living room of 33.9 m², a room of 36.6 m², a bright kitchen of 7.9 m², a toilet of 2.5 m², and a separate studio apartment of approximately 17 m².

First floor - (height - 3.50 m): three large rooms (40 m², 27.9 m², 26.6 m²), two walk-in closets of 1.5 m² each, a bright bathroom with a shower and toilet of approximately 4 m², a bathroom with a toilet and urinal of 4 m², and a large, spacious hall. 23 m²;

Attic - approx. 100 m² (height at the gable - approx. 3.20 m) - two separate rooms with sloped ceilings and a hall with a kitchenette.

Large, high basement: height approx. 250 cm - boiler room, hall, two large rooms of 30 m² and 20 m²

15 parking spaces on the plot

WHAT MAKES THIS PREMISES SPECIAL:

440 m² on 4 floors (basement, ground floor, first floor, attic)
Historic staircase connecting the ground floor, first floor, and attic
15 parking spaces in the enclosed courtyard
Good transport links
District heating - own heating substation in the building

IDEAL FOR: Law firm | Consulting office | Creative agency | Company Representative Offices

COSTS:

Rent: PLN 25,000 + VAT
Utilities: Water, electricity, heating

Wirtualny spacer po nieruchomości
Plany Nieruchomości
Mapa
Kontakt z agentem

Art Dom

Aleksandra Kozłowska
Nieprawidłowy adres E-mail

Strona korzysta z plików cookie w celu realizacji usług zgodnie z Polityką prywatności. Możesz określić warunki przechowywania lub dostępu do cookie w Twojej przeglądarce.